Beebe Lake County Park Community Survey

Planning is underway for site improvements within Beebe Lake County Park. Key proposed elements include replacement of the existing restroom building, improved accessibility to the restroom building, beach, and existing play area, and a nature-based play area. Wright County Parks is pursuing an Outdoor Recreation Grant through the Minnesota Department of Natural Resources to assist in funding the improvements.

We are seeking input from residents on the proposed improvements. Please review the images that follow and provide any comments you may have. Your participation is critical in ensuring that the park meets the needs of residents. After input is received, feedback will be integrated into the concept plans and construction documents.
BEEBE LAKE COUNTY PARK
WRIGHT COUNTY PARKS & RECREATION
GENERAL SITE IMPROVEMENTS

The recreation site plan provides an overview of all proposed improvements. You can view a PDF version of the image here.
The recreation site plan provides an overview of all proposed improvements.  The images below provide additional detail on enlargement areas and proposed materials.
The images below provide additional detail on enlargement areas and proposed materials.
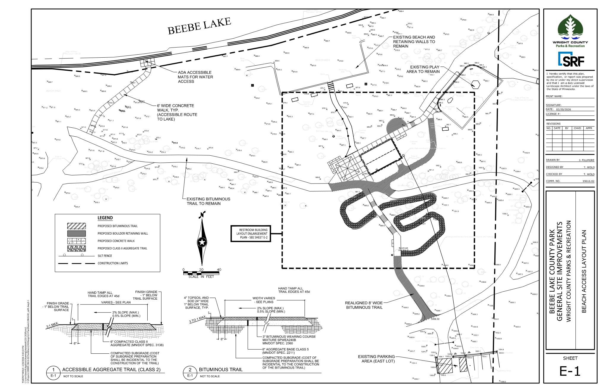
E-1: BEACH ACCESS LAYOUT PLAN

Improvements on sheet E-1 include:
  • Improved trail access from the existing east parking lot to the wooded area above the embankment.
  • ADA compliant access to the beach adjacent to the sand volleyball court (see sheet E-7 for proposed beach access mats).

You can view a PDF version of the image here.
1.Please review sheet E-1 and provide any comments you may have below:
E-2: RESTROOM BUILDING LAYOUT ENLARGEMENT

Improvements on sheet E-2 include:
  • An ADA accessible trail (crushed granite) down the embankment.
  • Improved stairs with handrail down the embankment.
  • Replacement of the existing restroom building.
  • Seating/gathering areas with shade adjacent to the proposed restroom building.
  • ADA compliant bituminous trail to existing play area.
You can view a PDF version of the image here.
2.Please review sheet E-2 and provide any comments you may have below:
E-3: NATURE PLAY LAYOUT ENLARGEMENT PLAN

Improvements on sheet E-3 include:
  • A nature-based play area (see sheet E-6 for potential play elements) and natural stone seating areas.
  • Expanded prairie restoration, providing opportunities for ecological education/interpretation.
You can view a PDF version of the image here.
3.Please review sheet E-3 and provide any comments you may have below:
E-4: RESTROOM BUILDING PLAN

Improvements on sheet E-4 include:
  • Preliminary floor plan for the proposed restroom building with office/storage space.
You can view a PDF version of the image here.
4.Please review sheet E-4 and provide any comments you may have below:
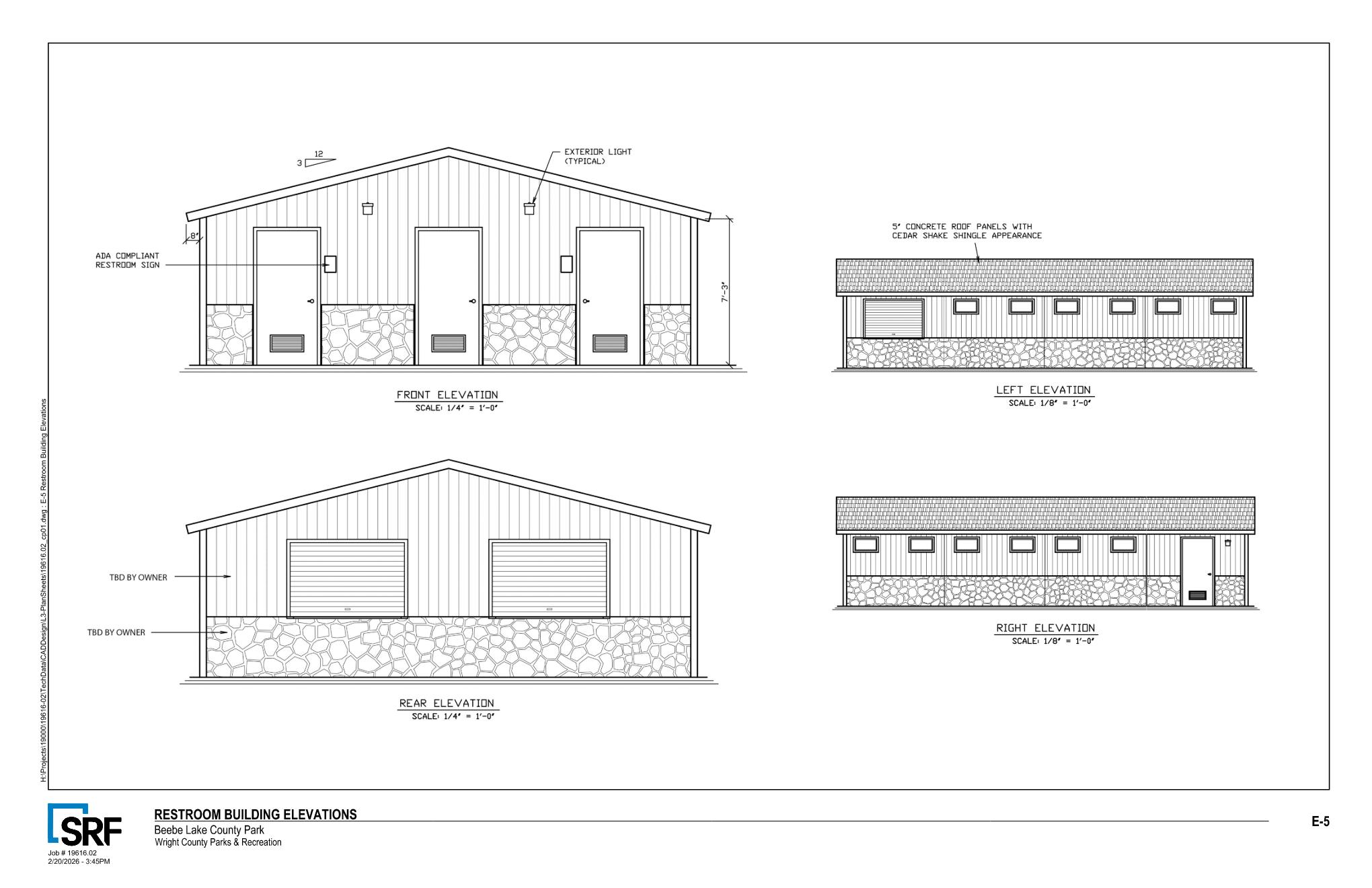
E-5: RESTROOM BUILDING ELEVATIONS

Improvements on sheet E-5 include:
  • Preliminary building elevations for the proposed restroom building with office/storage space.
You can view a PDF version of the image here.
5.Please review sheet E-5 and provide any comments you may have below:
E-6: NATURE PLAY EQUIPMENT AND SURFACING

Improvements on sheet E-6 include:
  • Potential nature-based play elements.
You can view a PDF version of the image here.
6.Please review sheet E-6 and provide any comments you may have below:
E-7: MISCELLANEOUS IMPROVEMENTS

Improvements on sheet E-7 include:
  • Potential interpretive signage (nature play area).
  • Proposed natural stone seating (throughout the improvements).
  • Proposed ADA compliant beach access mats (see sheet E-2 for locations).
  • Proposed shade structure (see sheet E-3 for location).
  • Please review sheet E-6 and provide any comments you may have.
You can view a PDF version of the image here.
Thank you for taking the time to provide your input!

The next step is to integrate feedback received into the concept and prepare final construction plans for the Beebe Lake County Park. Construction of the planned improvements is anticipated in 2027.
Privacy & Cookie Notice